103 m2
2 hálószobák
2 fürdő
Garázs
Paraméterek
Ingatlan típusa:
Társasházi lakás
Emelet:
III
Lift:
Van
Bútorozottság:
Bútorozott
Terasz/Erkély:
Erkély
Háziállat:
Egyeztetés szükséges
Ingatlan leírása
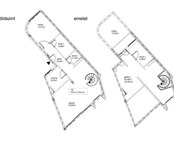
LUXUSLAKÁS A HALÁSZBÁSTYA ALATT! III. em-i (lift), 103 nm-es, kétszintes lakás kiadó új házban. Alsó szint: nappali, konyha, kamra, 1 hálószoba, 1 fürdőszoba. Felső szint: galéria, 1 fürdőszoba, 15 nm erkély. A lakás bútorral kiadó. Terem garázs hely 100 EUR + ÁFA/hely, tárolók 10 EUR/nm/hó + ÁFA áron bérelhetők. Közös ktg: 580 Ft/nm/hó (közös területek takarítása, világítása, szemét, riasztó távfelügyelet, közös területek kamerás megfigyelése, 24 órás őrszolgálat). Bérleti díj: 2300 EURO + ÁFA.
Felszereltség
Lift
Elhelyezkedés
A térkép töltődik...


















