124 m2
3 hálószobák
2 fürdő
Garázs
Paraméterek
Ingatlan típusa:
Társasházi lakás
Emelet:
II.
Lift:
Nincs
Bútorozottság:
Bútorozott
Terasz/Erkély:
Erkély
Háziállat:
Egyeztetés szükséges
Ingatlan leírása
NEMZETKÖZI ISKOLÁK KÖZELÉBEN KIADÓ CSENDES LAKÁS
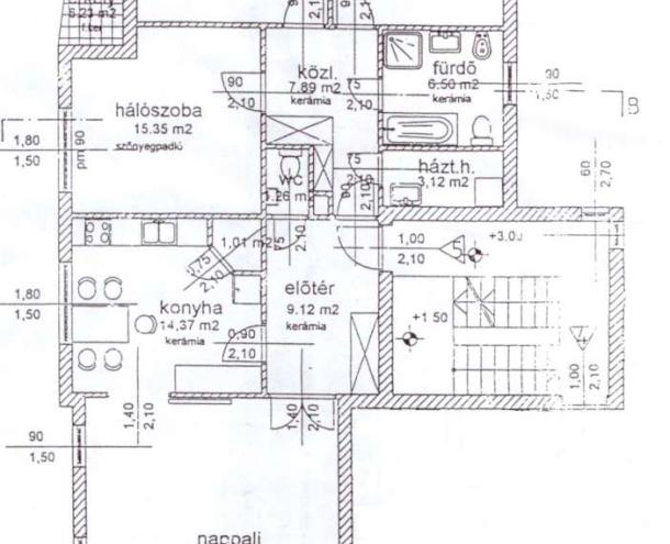
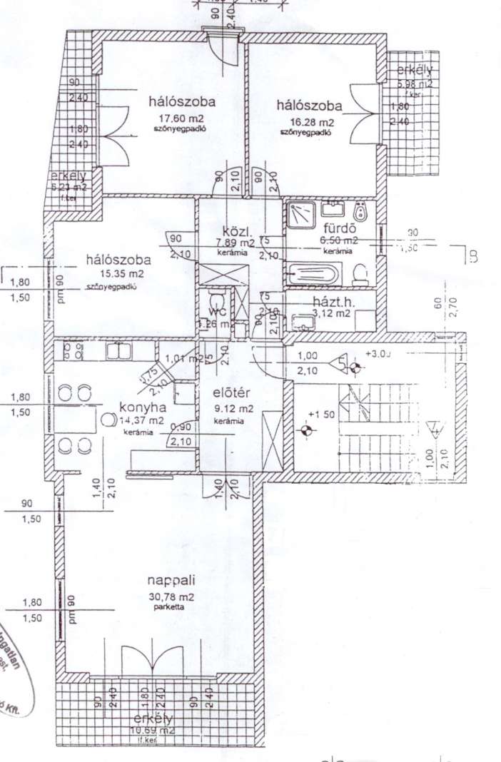
1998-ban épült 9 lakásos társasház 124 nm-es II. em-i (nincs lift), panorámás lakása kiadó szép, közös kertben. Helyiségei: nappali, 3 hálószoba, étkezős, gépesített konyha, 2 fürdőszoba (az egyikben kád, WC és bidé, a másikban zuhanyozó, mosógép), külön WC, 3 erkély. A légkondival felszerelt lakás bútorral bérelhető, 1 autónak garázs és tároló tartozik hozzá. A közös költség: 33.060 Ft/hó, UPC internet. Háziállat nem mehet! 2026. áprilistól elérhető.
1998-ban épült 9 lakásos társasház 124 nm-es II. em-i (nincs lift), panorámás lakása kiadó szép, közös kertben. Helyiségei: nappali, 3 hálószoba, étkezős, gépesített konyha, 2 fürdőszoba (az egyikben kád, WC és bidé, a másikban zuhanyozó, mosógép), külön WC, 3 erkély. A légkondival felszerelt lakás bútorral bérelhető, 1 autónak garázs és tároló tartozik hozzá. A közös költség: 33.060 Ft/hó, UPC internet. Háziállat nem mehet! 2026. áprilistól elérhető.
Felszereltség
Légkondicionált
Elhelyezkedés
A térkép töltődik...














