143 m2
3 hálószobák
2 fürdő
Paraméterek
Ingatlan típusa:
Társasházi lakás
Emelet:
m.fszt.
Lift:
Van
Bútorozottság:
Bútorozott
Terasz/Erkély:
Terasz
Háziállat:
Egyeztetés szükséges
Ingatlan leírása
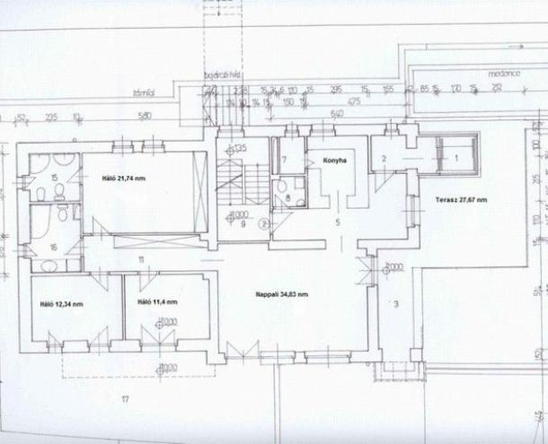
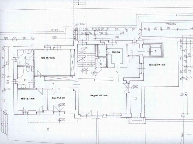
LUXUS, ÁTGONDOLT ELRENDEZÉS, RENGETEG SZOLGÁLTATÁS EGY HELYEN!!! 2016-ban teljes körűen átépített, 3 lakásos társasház mfszt-i (a lift a lakásban áll meg), 143 nm-es luxuslakása kiadó. 35 nm-es nappaliból a félig fedett, félig nyitott teraszra jutunk ki, ahonnan egy közös használatú jacuzzihoz juthatunk el. A 3 hálószobához 2 fürdőszoba tartozik. A konyha szeparált, a családi étkezésekre elegendő hely biztosított. A nappaliból gyönyörű panoráma látható. Fan-coil fűtés rendszer, ami télen a meleget és nyáron a hideget biztosítja. A ház alsó szintjein találjuk a minden kényelmet kiszolgáló területet: bár, trezor, közös rendezvény terem, wellness részleg, uszoda, kétféle szauna, konditerem, pedikűr, masszázs szoba, 24 órás portaszolgálat, teremgarázs. A kertben gyerekeket a számukra kialakított közös játszótérre gond nélkül ki lehet engedni. Alaprajz! A közös költség 500 EURO ami tartalmazza a rezsiköltségeket is. 2026. januártól
Felszereltség
Lift
Kertkapcsolat
Légkondicionált
Földszint
Medence
Elhelyezkedés
A térkép töltődik...


















