202 m2
6 hálószobák
3 fürdő
2 garázs
Paraméterek
Ingatlan típusa:
Társasházi lakás
Emelet:
1
Lift:
Van
Bútorozottság:
Részben bútorozott
Terasz/Erkély:
Terasz
Háziállat:
Egyeztetés szükséges
Ingatlan leírása
Kiadó luxuslakás a II. kerületben, a Bimbó úton.
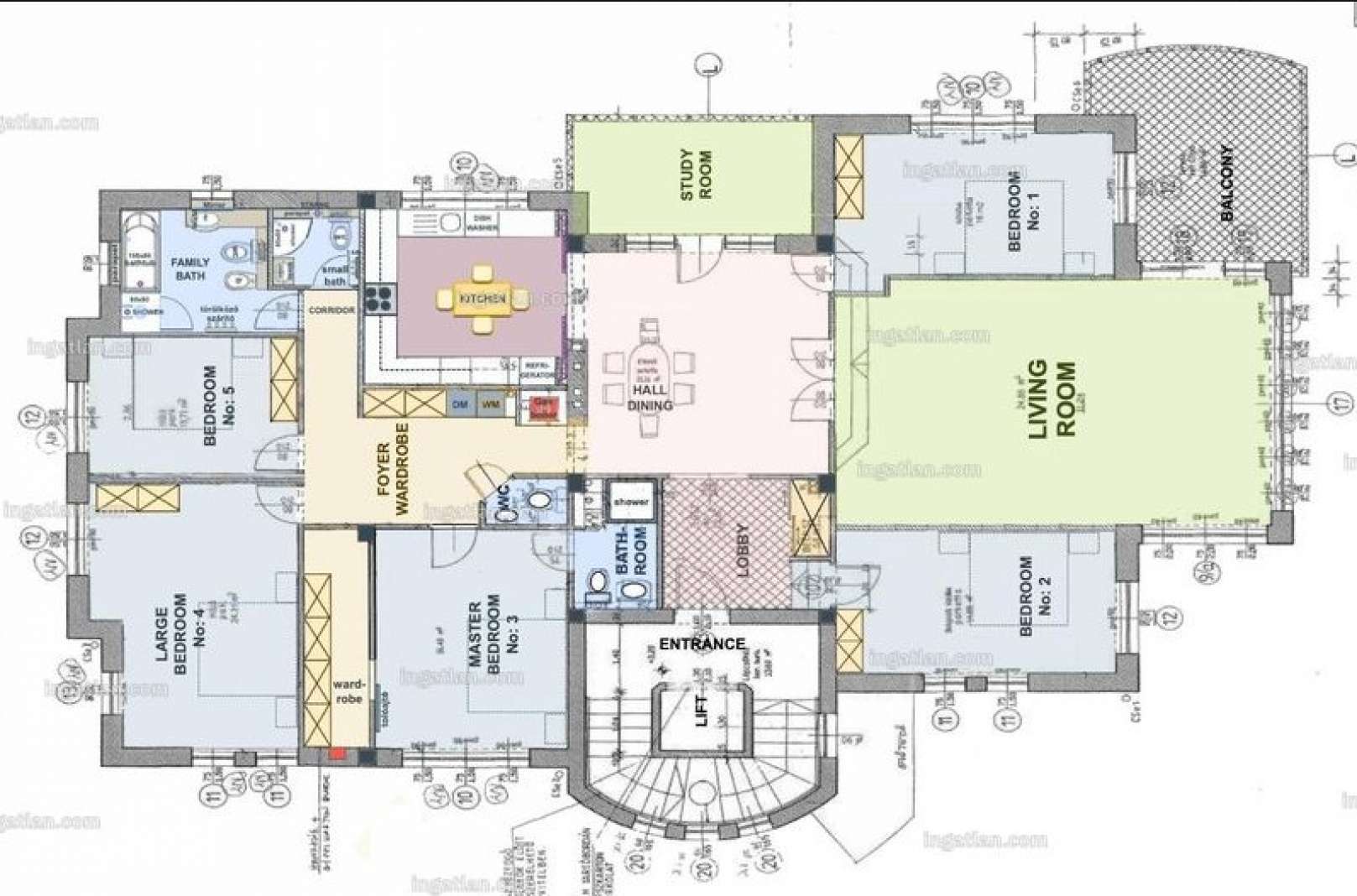
202 m²-es, panorámás, részben bútorozott otthon 15 m²-es terasszal, két zárt garázshellyel és tárolóval, liftes, 3 lakásos társasházban.
Elrendezés: 5 hálószoba, tágas nappali, étkező, konyha, hobbyszoba, 3 fürdőszoba, gardrób, vendég-WC.
Felszereltség: egyedi gázcirkó és részben padlófűtés, 8 klíma, redőny és rovarháló minden szobában, riasztó, kamerás kaputelefon, gépesített konyha, chipkártyás/kódos beléptetés.
Ingyenes parkolás a csendes mellékutcában.
Közös költség: 60.000 Ft/hó + kötelező éves karbantartások a bérlő részéről.
Háziállat nem megengedett.
Beköltözhető: 2026 január közepétől.
202 m²-es, panorámás, részben bútorozott otthon 15 m²-es terasszal, két zárt garázshellyel és tárolóval, liftes, 3 lakásos társasházban.
Elrendezés: 5 hálószoba, tágas nappali, étkező, konyha, hobbyszoba, 3 fürdőszoba, gardrób, vendég-WC.
Felszereltség: egyedi gázcirkó és részben padlófűtés, 8 klíma, redőny és rovarháló minden szobában, riasztó, kamerás kaputelefon, gépesített konyha, chipkártyás/kódos beléptetés.
Ingyenes parkolás a csendes mellékutcában.
Közös költség: 60.000 Ft/hó + kötelező éves karbantartások a bérlő részéről.
Háziállat nem megengedett.
Beköltözhető: 2026 január közepétől.
Felszereltség
Lift
Légkondicionált
Elhelyezkedés
A térkép töltődik...












