185 m2
3 hálószobák
2 fürdő
2 garázs
Paraméterek
Ingatlan típusa:
Társasházi lakás
Emelet:
3
Lift:
Van
Bútorozottság:
Bútorozott
Terasz/Erkély:
Terasz
Háziállat:
Egyeztetés szükséges
Ingatlan leírása
Kiadó napfényes, 185 nm-es, panorámás lakás Rózsadomb egyik legnívósabb utcájában, dupla garázzsal
A II. kerület legmagasabb presztízsű részén, Rózsadombon kínálunk hosszú távra bérlésre egy harmadik emeleti, déli fekvésű, örökpanorámás lakást. A 2000-ben kiváló anyagokból épült, rendezett, liftes társasházban található.
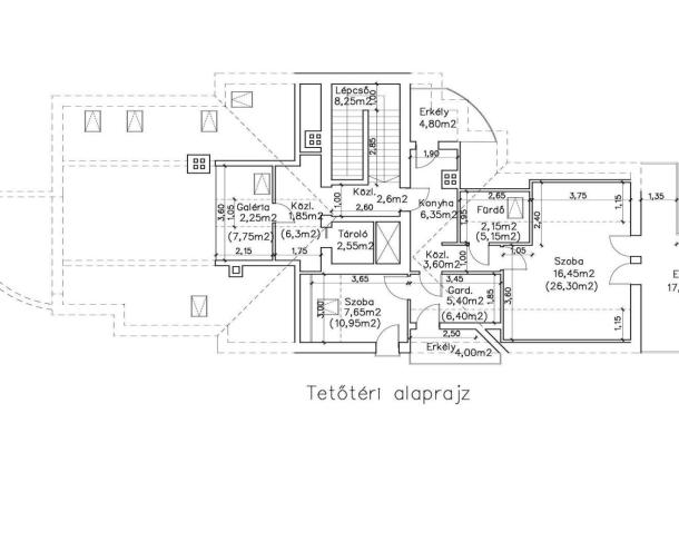
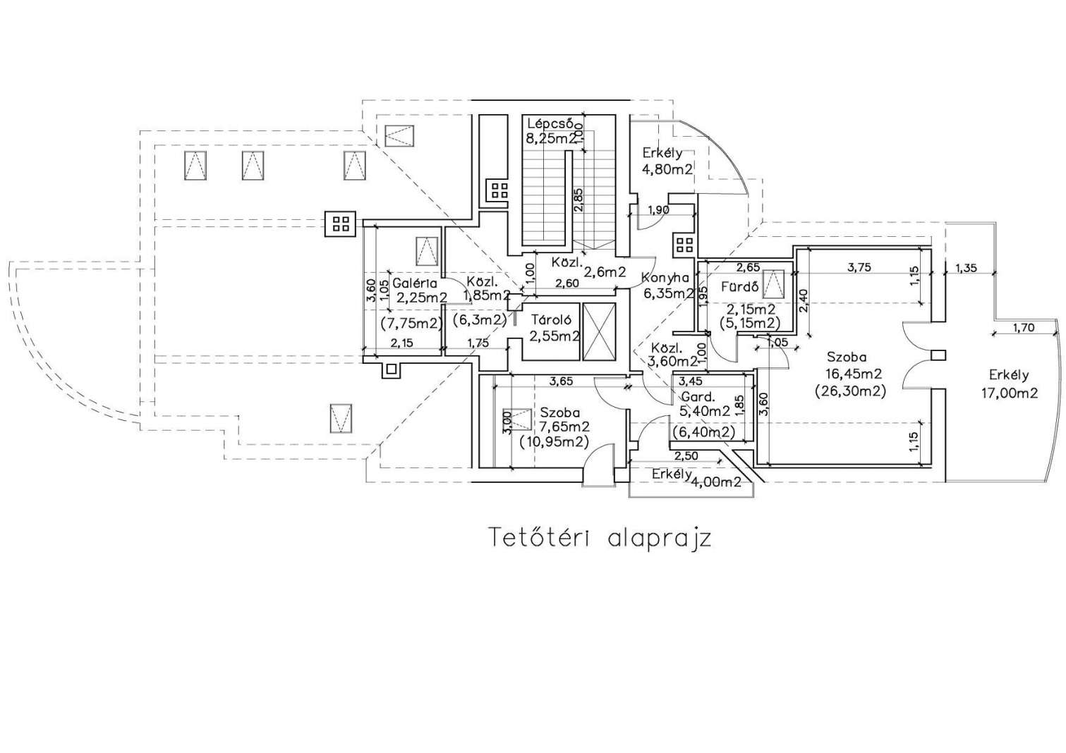
Belső kétszintes ingatlan alsó szintjén található a nappali amerikai konyhával, egy hálószoba és egy fürdőszoba. A tetőtérben szintén található egy konyha, két hálószoba, egy fürdőszoba és gardrób helyiség, valamint egy tároló.
A biztonságos, csendes környezethez kiváló közlekedés és infrastruktúra társul. A lakáshoz két kényelmes teremgarázshely is tartozik. Közös költség 90.000,-Ft/hó, a rezsi költség 60.000,-Ft/hó.
Háziállat nem megengedett.
A II. kerület legmagasabb presztízsű részén, Rózsadombon kínálunk hosszú távra bérlésre egy harmadik emeleti, déli fekvésű, örökpanorámás lakást. A 2000-ben kiváló anyagokból épült, rendezett, liftes társasházban található.
Belső kétszintes ingatlan alsó szintjén található a nappali amerikai konyhával, egy hálószoba és egy fürdőszoba. A tetőtérben szintén található egy konyha, két hálószoba, egy fürdőszoba és gardrób helyiség, valamint egy tároló.
A biztonságos, csendes környezethez kiváló közlekedés és infrastruktúra társul. A lakáshoz két kényelmes teremgarázshely is tartozik. Közös költség 90.000,-Ft/hó, a rezsi költség 60.000,-Ft/hó.
Háziállat nem megengedett.
Felszereltség
Lift
Légkondicionált
Tetőtéri
Elhelyezkedés
A térkép töltődik...





























