165 m2
2 hálószobák
1 fürdő
Paraméterek
Ingatlan típusa:
Társasházi lakás
Emelet:
fszt
Lift:
Nincs
Bútorozottság:
Bútorozott
Terasz/Erkély:
Terasz
Háziállat:
Egyeztetés szükséges
Ingatlan leírása
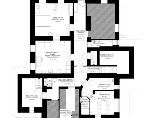
ELEGÁNS VILLALAKÁS KIADÓ RÖVIDTÁVRA IS! Gyönyörűen felújított és karbantartott villa földszintjén kiadó ez a 165 nm-es, egyszintes, kertre néző lakás. A lakás felújított, teljesen bútorozott, felszerelt, található benne egy nappali teakonyhával, külön konyha étkezővel, szauna zuhanyzóval, 2 külön WC, két zuhanyzós fürdőszoba, 2 hálószoba, mosókonyha és kertkapcsolatos terasz. Üzemeltetési és rezsiköltség: 2,5 euro/nm/hó + ÁFA, tartalmazza a következőket: víz, szennyvíz, gáz, áram, kuka, riasztó távfelügyelet, kertészet, közös területek fűtése, hűtése, világítása, takarítása. A lakás rövidtávra is kiadó. Az udvaron felszíni kocsibeálló tartozik a lakáshoz, 200 m-re garázs is bérelhető.
Felszereltség
Földszint
Elhelyezkedés
A térkép töltődik...
















