700 m2
5 hálószobák
2 garázs
Paraméterek
Ingatlan típusa:
Családi ház
Emelet:
Lift:
Nincs
Bútorozottság:
Terasz/Erkély:
Nincs
Háziállat:
Egyeztetés szükséges
Ingatlan leírása
ÓBUDA PANORÁMÁS DOMBOLDALÁN ELADÓ ÖNÁLLÓ CSALÁDI HÁZ.
Az épület a III. ker. Táborhegy részén, egy 2000-ben épült négyszintes (700 m2-es ) családi ház 1511 m2 telken.
Az ingatlan magyar személy 1/1 arányú kizárólagos tulajdonát képezi.
Az ingatlan lokációja kiváló. A hegyvidék ezen zöldövezeti részéről pár percre található a GOBUDA Mall (volt Eurocenter) bevásárló központ, az angol iskola, több golf- és teniszpálya. A buszmegálló a háztól 20 méterre található.
Az ingatlant – méretei miatt – elsősorban cégeknek vállalkozásra, irodaháznak, magánklinikának, egészségügyi központnak, igényes nagycsaládosoknak, vagy cégüket a saját otthonukban működtetni kívánó befektetőknek, illetve építkezéssel foglalkozó kivitelezőknek ajánljuk.
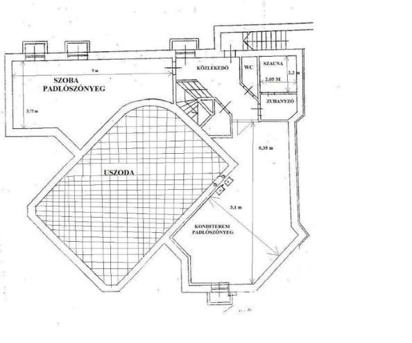
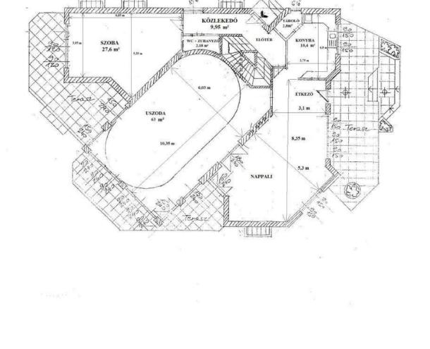
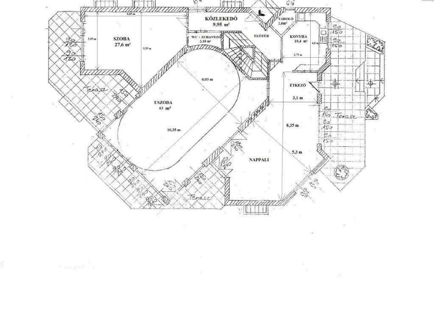
A házban 10×4×1,6 m-es belső medence található, ezért (némi átalakítással) akár panzióként is hasznosítható.
Szauna és konditerem is van az épületben.
Hosszútávú bérbeadása esetén kiváló, passzív jövedelmet termelő hozammal lehet kalkulálni (3000 – 3.500 euró/hó), melyhez igény esetén segítséget nyújtunk.
A telekre további különálló épület építhető, vagy a ház átépítésével többlakásos társasházként is hasznosítható.
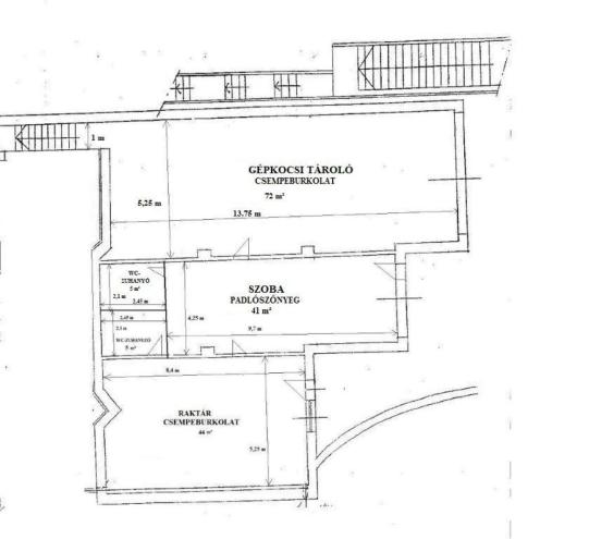
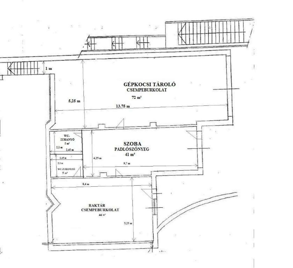
Az ingatlanban jelenleg 6 db gépkocsi tárolására alkalmas fűtött garázs található, mely igény esetén tovább bővíthető. Az épület földszintjén 2 db utcai bejáratú cca. 50 m2-es helyiség található zuhannyal WC-vel ellátva, melyek akár külön kiadhatóak, vagy kisebb vállalkozásokra (pl.: fodrászat, kozmetika, könyvelőiroda stb. ) kiválóan hasznosíthatóak.
Az ingatlan több terasszal rendelkezik, melyekből kilátás nyílik a városra, a Budai hegyekre, és a gyümölcsfákkal beültetett nagy méretű gondozott kertre.
A ház előtt a parkolás több gépkocsi számára megoldott és ingyenes.
A ház kiépítése miatt (lakás a házban rendszer) jelenleg is kétszeresen vehető igénybe a rezsitámogatott gázár.
Az épület riasztó rendszerrel és légkondicionálással ellátott.
Az épület fűtéséről egy 2021-ben kiépítésre került rendkívül korszerű energiatakarékos wifi rendszerrel vezérelt BOSCH típusú kondenzációs kazán gondoskodik. Az ingatlan azonnal költözhető, per, igény és tehermentes.
Az épület a III. ker. Táborhegy részén, egy 2000-ben épült négyszintes (700 m2-es ) családi ház 1511 m2 telken.
Az ingatlan magyar személy 1/1 arányú kizárólagos tulajdonát képezi.
Az ingatlan lokációja kiváló. A hegyvidék ezen zöldövezeti részéről pár percre található a GOBUDA Mall (volt Eurocenter) bevásárló központ, az angol iskola, több golf- és teniszpálya. A buszmegálló a háztól 20 méterre található.
Az ingatlant – méretei miatt – elsősorban cégeknek vállalkozásra, irodaháznak, magánklinikának, egészségügyi központnak, igényes nagycsaládosoknak, vagy cégüket a saját otthonukban működtetni kívánó befektetőknek, illetve építkezéssel foglalkozó kivitelezőknek ajánljuk.
A házban 10×4×1,6 m-es belső medence található, ezért (némi átalakítással) akár panzióként is hasznosítható.
Szauna és konditerem is van az épületben.
Hosszútávú bérbeadása esetén kiváló, passzív jövedelmet termelő hozammal lehet kalkulálni (3000 – 3.500 euró/hó), melyhez igény esetén segítséget nyújtunk.
A telekre további különálló épület építhető, vagy a ház átépítésével többlakásos társasházként is hasznosítható.
Az ingatlanban jelenleg 6 db gépkocsi tárolására alkalmas fűtött garázs található, mely igény esetén tovább bővíthető. Az épület földszintjén 2 db utcai bejáratú cca. 50 m2-es helyiség található zuhannyal WC-vel ellátva, melyek akár külön kiadhatóak, vagy kisebb vállalkozásokra (pl.: fodrászat, kozmetika, könyvelőiroda stb. ) kiválóan hasznosíthatóak.
Az ingatlan több terasszal rendelkezik, melyekből kilátás nyílik a városra, a Budai hegyekre, és a gyümölcsfákkal beültetett nagy méretű gondozott kertre.
A ház előtt a parkolás több gépkocsi számára megoldott és ingyenes.
A ház kiépítése miatt (lakás a házban rendszer) jelenleg is kétszeresen vehető igénybe a rezsitámogatott gázár.
Az épület riasztó rendszerrel és légkondicionálással ellátott.
Az épület fűtéséről egy 2021-ben kiépítésre került rendkívül korszerű energiatakarékos wifi rendszerrel vezérelt BOSCH típusú kondenzációs kazán gondoskodik. Az ingatlan azonnal költözhető, per, igény és tehermentes.
Felszereltség
Medence
Elhelyezkedés
A térkép töltődik...




























